Startseite » Immobilien » Extravagante Maisonette-Dachgeschosswohnung in zentraler Lage in Weilheim
Extravagante Maisonette-Dachgeschosswohnung in zentraler Lage in Weilheim
82362 Weilheim in Oberbayern, Maisonettewohnung zum Kauf
Referenz
Dieses Objekt wurde bereits erfolgreich vermittelt.
Objektdaten
-
Baujahr1989
-
Zimmer3,5
-
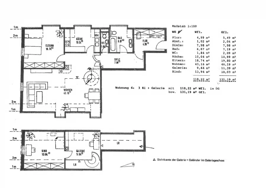
Wohnfläche ca.118,22 m²
Ausstattung / Merkmale
- ✓ Duplex-Garage
- ✓ Einbauküche
- ✓ Gäste-WC
- ✓ Kamin
- ✓ Keller
- ✓ Separates WC
Objektbeschreibung
Beschreibung
Diese extravagante Maisonette-Wohnung eignet sich für Liebhaber hoher Räume.
Sie bietet großzügigste Raumaufteilung.
In der unteren Ebene finden Sie das geräumige Wohnzimmer mit einer max. Raumhöhe von ca. 4,7 Meter, ein Schlafzimmer, die Küche (inkl. Einbauküche) sowie das Wannenbad und ein Gäste-WC.
Das Wohnzimmer mit gemütlichem Schwedenofen ist nach Westen ausgerichtet und direkt mit der Galerie durch eine Wendeltreppe verbunden. Von der Galerie aus können Sie das Wohnzimmer und die Diele überblicken. In der oberen Etage finden Sie noch ein weiteres Schlafzimmer mit Einbauschrank. Die Zimmer werden durch große Dachgauben/ Dachflächenfenster optimal belichtet.
Die Wohnung ist seit 2023 an ein Pärchen zuverlässig vermietet.
Zur Wohnung gehört ein Kellerabteil sowie ein Duplexstellplatz (oben).
Der Kaufpreis setzt sich wie folgt zusammen:
Kaufpreis Wohnung 380.000 € + Kaufpreis Duplex 15.000 € = Gesamtkaufpreis 395.000 €
Ausstattung
- Einbauküche
- Schwedenofen
- Galerie
- kein Aufzug
- 1 Duplexstellplatz (oben)
- vermietet
Sonstiges
Provisionshinweis: mit Ihrer Anfrage auf die von uns inserierte Immobilie schließen Sie mit uns
einen rechtsgültigen Maklervertrag ab, welcher jedoch erst mit erfolgreichem Zustandekommen
eines rechtsgültigen notariellen Kaufvertrages eine Provisionspflicht auslöst.
Haftungsausschluss: alle Angaben sind vom Eigentümer, der Makler übernimmt keine Haftung für
deren Vollständigkeit und Richtigkeit.
Dieses Exposé ist eine Vorinformation, als Rechtsgrundlage gilt alleine der notariell abgeschlossene
Kaufvertrag.
Lage
Die Stadt Weilheim liegt mit ihren rund 23.000 Einwohnern eingebettet im wunderschönen Voralpenland zwischen München und Garmisch-Partenkirchen, mit direktem Blick auf die Berge. Als historische Kreisstadt ist sie Zentrum des oberbayrischen Pfaffenwinkels mit seinen berühmten Klöstern, Kirchen und Seen und besticht dadurch mit ihrem hohen Freizeitwert. Darüber hinaus ist Weilheim eine beliebte Einkaufsstadt mit einer einladenden Fußgängerzone in der historischen Altstadt. Sämtliche Geschäfte des täglichen Bedarfs, eine Vielzahl von Schulen (Realschule, ein Gymnasium, Mittelschule, Fachoberschule, Berufsschule, mehrere Grundschulen, etc.) sowie zahlreiche Ärzte und Behörden finden Sie hier vor. An den maßgeblichen Verkehrsachsen der Stadt haben sich in den letzten Jahren attraktive Gewerbegebiete entwickelt, die eine überregionale Versorgungsfunktion übernommen haben. Weilheim bietet zudem eine gute Anbindung zur Landeshauptstadt München in etwa 50 km. Die Zuganbindung ist optimal ausgebaut, so fahren in Stoßzeiten zweimal pro Stunde Züge nach München. Um die Berge zu erreichen fährt man ca. 45 km bis Garmisch-Partenkirchen. Da sich Weilheim zudem nah am Fünfseenland befindet, sind der Starnberger See, der Ammersee und der Staffelsee in ca. 20 min zu erreichen.
Die Immobilie befindet sich zentral gelegen in Bahnhofsnähe.
Die Altstadt mit Zahlreichen Einkaufsmöglichkeiten, Geschäften des täglichen Bedarfs sowie Gastronomieangeboten erreichen Sie in nur 3 Minuten zu Fuss.
Wenn Sie die Immobilien-Karte anzeigen, übertragen Sie Daten an Google Maps (Datenschutzerklärung).
Die dargestellte Position der Immobilie ist nur eine ungefähre Angabe.












