Startseite » Immobilien » Natur Pur! Großzügige Erdgeschoßwohnung mit Garten und tollem Ausblick ins Grüne!
Natur Pur! Großzügige Erdgeschoßwohnung mit Garten und tollem Ausblick ins Grüne!
82362 Weilheim in Oberbayern, Erdgeschosswohnung zum Kauf
Referenz
Dieses Objekt wurde bereits erfolgreich vermittelt.
Objektdaten
-
Baujahr1997
-
Zimmer4
-
Wohnfläche ca.95 m²
Ausstattung / Merkmale
- ✓ Carport
- ✓ Einbauküche
- ✓ Kamin
- ✓ Terrasse
Objektbeschreibung
Beschreibung
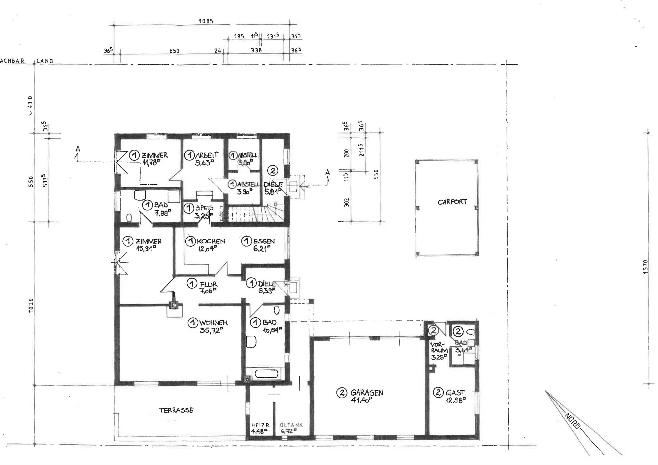
Diese charmante 4-Zimmer-Erdgeschoßwohnung befindet sich, in sehr ruhiger Wohnlage, mitten in der Natur in einem massiv erstellten Zweifamilienhaus.
Das Gebäude aus den ca. 50er Jahren wurde 1997 kernsaniert und um einen Anbau erweitert.
Die Wohnung verfügt über ca. 95 Quadratmeter Wohnfläche, welche sich auf 3 helle Schlafzimmer, 2 vollausgestattete Badezimmer, eine Wohnküche (Einbauküche samt Elektrogeräten ist im Kaufpreis enthalten) mit angrenzender Speisekammer sowie 2 Abstellräume verteilen.
Vom großzügigen Wohnbereich aus haben Sie Zugang zur Süd-Terrasse, von einem Schlafzimmer aus gelangen Sie auf die Westterrasse.
Beide Terrassen wurden mit neuen Markisen ausgestattet, welche an sonnigen Sommertagen wohligen Schatten spenden.
Hier können Sie in Ruhe entspannen und nicht nur den charmant bepflanzten Garten, sondern auch den Weitblick über große Wiesenflächen in den nahegelegenen Wald geniessen.
Auch die Ausstattung der Wohnung kann sich sehen lassen.
Ein Glasfaseranschluss sorgt für schnelle Internetverbindungen.
Die Böden wurden in Echtholz-Parkett sowie Fliesen ausgestattet und verfügen großteils über Fussbodenheizung.
Im Wohnzimmer steht zudem für kalte Tage ein gemütlicher Kaminofen zur Verfügung und beschert hier für wohliges Ambiente.
Die großzügige dimensionierten Holzfenster mit 2-Fach-Verglasung bieten im gesamten Objekt einen tollen Tageslichteinfall.
Die Öl-Heizung wird mit einer Warmwasser-Solar-Thermie unterstützt und generiert so günstige Betriebskosten.
Abgerundet wird die Wohnung noch mit einem gemeinschaftlich genutzten Innenhof, einer Garten- bzw. Fahrradhütte und zwei zugehörigen Carports.
Ausstattung
- Traumhafte Naturlage mit Weitblick
- 2 vollwertige Badezimmer
- teilweise Fussbodenheizung
- Echtholz-Parkett sowie Fliesenböden
- Einbauküche samt Elektrogeräten
- Kaminofen
- Süd- und Westterrasse
- 2 Carports
- Warmwasser-Solar-Thermie
- Glasfaser Internet-Anschluss
- Fensterläden
Sonstiges
Provisionshinweis: mit Ihrer Anfrage auf die von uns inserierte Immobilie schließen Sie mit uns einen rechtsgültigen Maklervertrag ab, welcher jedoch erst mit erfolgreichem Zustandekommen eines rechtsgültigen notariellen Kaufvertrages eine Provisionspflicht auslöst.
Haftungsausschluss: alle Angaben sind vom Eigentümer, der Makler übernimmt keine Haftung für deren Vollständigkeit und Richtigkeit.
Dieses Exposé ist eine Vorinformation, als Rechtsgrundlage gilt alleine der notariell abgeschlossene Kaufvertrag.
Der Grundriss weicht leicht vom Istzustand ab.
Lage
Die Stadt Weilheim liegt mit ihren rund 23.000 Einwohnern eingebettet im wunderschönen Voralpenland zwischen München und Garmisch-Partenkirchen, mit direktem Blick auf die Berge.
Als historische Kreisstadt ist sie Zentrum des oberbayrischen Pfaffenwinkels mit seinen berühmten Klöstern, Kirchen und Seen und besticht dadurch mit ihrem hohen Freizeitwert.
Darüber hinaus ist Weilheim eine beliebte Einkaufsstadt mit einer einladenden Fußgängerzone in der historischen Altstadt.
An den maßgeblichen Verkehrsachsen der Stadt haben sich in den letzten Jahren attraktive Gewerbegebiete entwickelt, die eine überregionale Versorgungsfunktion übernommen haben.
Mit ihren leistungsfähigen Gewerbebetrieben ist die Stadt Weilheim ein starker wirtschaftlicher Faktor innerhalb des Landkreises.
Weilheim bietet zudem eine gute Anbindung zur Landeshauptstadt München in etwa 50 km. Um die Berge zu erreichen fährt man ca. 45 km bis Garmisch-Partenkirchen. Da sich Weilheim zudem nah am Fünfseenland befindet, sind der Starnberger See, der Ammersee und der Staffelsee in ca. 20 min zu erreichen.
Sämtliche Schulen, Kindergärten, Grippen etc. sind in Weilheim vorhanden.
Die Wohnung selbst liegt im kleinen Ortsteil von Weilhein "Tankenrain", ca. 5,8 Kilometer entfernt, mitten in der Natur.
Wenn Sie die Immobilien-Karte anzeigen, übertragen Sie Daten an Google Maps (Datenschutzerklärung).
Die dargestellte Position der Immobilie ist nur eine ungefähre Angabe.













