Startseite » Immobilien » Reihenmittelhaus mit 2 separaten Wohneinheiten in bevorzugter Wohnlage zur Anlage
Reihenmittelhaus mit 2 separaten Wohneinheiten in bevorzugter Wohnlage zur Anlage
82362 Weilheim in Oberbayern, Reihenmittelhaus zum Kauf
Referenz
Dieses Objekt wurde bereits erfolgreich vermittelt.
Objektdaten
-
Baujahr1999
-
Zimmer4
-
Wohnfläche ca.162 m²
-
Grundstück ca.181 m²
Ausstattung / Merkmale
- ✓ Balkon
- ✓ Keller
- ✓ Massivbauweise
- ✓ Separates WC
- ✓ Terrasse
- ✓ Tiefgarage
Objektbeschreibung
Beschreibung
Dieses gemütliche Reihenmittelhaus wurde im Jahr 1999 in bevorzugter und ruhiger Wohnlage im Zentrum Weilheim´s, von einem renommierten und ortsansässigen Bauträger in massiver Ziegelbauweise erstellt.
Das ansprechende Haus verfügt über 2 getrennte Wohneinheiten, welche aktuell zuverlässig vermietet sind.
Eine Kündigung wegen Eigenbedarf ist aufgrund des Alters der Mieter vermutlich nur schwer bis garnicht durchsetzbar.
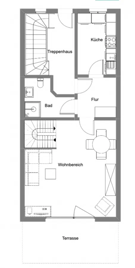
Durch den gefällig angelegten Vorgarten erreichen Sie die Eingangstüre, welche den Zugang zum Treppenhaus freigibt.
Im Erdgeschoß befindet sich die erste Wohnung welche über eine separate Küche, ein Badezimmer mit WC, Waschtisch und Dusche, einen kleinen Flur mit Gardarobennische sowie ein geräumiges Wohnzimmer mit großen Fensterfronten und Zugang zur eigenen Terrasse und dem eigenen Garten mit Süd-West-Ausrichtung freigibt.
Vom Wohnzimmer haben Sie auch die Verbindung über eine Treppe in den voll ausgebauten Hobbyraum. Dieser kann auch gut als Schlafzimmer genutzt werden und verfügt über zwei Tageslichtschächte.
Die zweite Wohneinheit erstreckt sich über das 1. Obergeschoß sowie auf das vollständig ausgebaute Dachgeschoß. Im ersten Obergeschoß werden Sie von einem Gäste-WC, einer geräumigen Wohnküche mit großzügiger Essecke, einer Speisekammer, sowie einem einladenden und lichtdurchfluteten Wohnzimmer empfangen. Von hier aus gelangen Sie Zugang auf den Süd-West-Balkon.
Das voll ausgebauten Dachgeschoß präsentiert sich mit tollen Deckenhöhen und gemütlichem, offenen Dachstuhl. Hier befindet sich neben einem Flur ein großes Schlafzimmer mit weiterem Süd-West-Balkon, ein weiteres geräumiges Schlafzimmer sowie ein Badezimmer mit Badewanne, Waschtisch sowie WC.
Im Kellergeschoß stehen neben dem Technikraum, welcher die Gas-Heizung beherbergt noch jeweils ein Kellerraum pro Wohnung zur Verfügung.
Vom Keller gelangen Sie auch direkt trockenen Fußes in die angrenzende, kleine Tiefgarage.
Hier befinden sich 2 geräumige, ebenerdige Tiefgaragenplätze welche zum Haus zugehörig sind.
Zudem steht noch ein PKW-Aussenstellplatz zur Verfügung.
Zu erwähnen ist die bevorzugte, ruhige und dennoch zentrale Wohnlage in Weilheim.
Der Kaufpreis setzt sich wie folgt zusammen:
Kaufpreis Haus 599.000 € + 2 TG´s 40.000 € + Außenstellplatz 5.000 € = Gesamtkaufpreis 644.000 €
Ausstattung
- Massive und Moderne Bauweise mit gefälliger Architektur
- 2 getrennte Wohneinheiten (gut als Kapitalanlage, als Mehrgenerationen-Haus oder Wohnen und Büro nutzbar)
- aktuell zuverlässig vermietet
- Wohnung EG Terrasse mit eigenem Garten
- Wohnung 1. OG und DG mit 2 Balkonen
- Offener Dachstuhl
- 2 Tiefgaragenstellplätze
- 1 Aussenstellplatz
Sonstiges
Alle Angaben sind vom Eigentümer, der Makler übernimmt keine Haftung für deren Vollständigkeit und Richtigkeit.
Dieses Exposé ist eine Vorinformation, als Rechtsgrundlage gilt alleine der notariell abgeschlossene Kaufvertrag.
Provisionshinweis: mit Ihrer Anfrage auf die von uns inserierte Immobilie schließen Sie mit uns einen rechtsgültigen Maklervertrag ab, welcher jedoch erst mit erfolgreichem Zustandekommen eines rechtsgültigen notariellen Kaufvertrages eine Provisionspflicht auslöst.
Lage
Die Stadt Weilheim liegt mit ihren rund 23.000 Einwohnern eingebettet im wunderschönen Voralpenland zwischen München und Garmisch-Partenkirchen, mit direktem Blick auf die Berge.
Als historische Kreisstadt ist sie Zentrum des oberbayrischen Pfaffenwinkels mit seinen berühmten Klöstern, Kirchen und Seen und besticht dadurch mit ihrem hohen Freizeitwert.
Darüber hinaus ist Weilheim eine beliebte Einkaufsstadt mit einer einladenden Fußgängerzone in der historischen Altstadt.
An den maßgeblichen Verkehrsachsen der Stadt haben sich in den letzten Jahren attraktive Gewerbegebiete entwickelt, die eine überregionale Versorgungsfunktion übernommen haben.
Mit ihren leistungsfähigen Gewerbebetrieben ist die Stadt Weilheim ein starker wirtschaftlicher Faktor innerhalb des Landkreises.
Weilheim bietet zudem eine gute Anbindung zur Landeshauptstadt München in etwa 50 km. Um die Berge zu erreichen fährt man ca. 45 km bis Garmisch-Partenkirchen. Da sich Weilheim zudem nah am Fünfseenland befindet, sind der Starnberger See, der Ammersee und der Staffelsee in ca. 20 min zu erreichen.
Das Haus selbst befindet sich, sehr ruhig gelegen und dennoch zentral im Ortskern.
Zahlreiche Einkaufsmöglichkeiten sowie die Weilheimer Innenstadt, Schulen sowie das Krankenhaus befinden sich nur wenige Gehminuten vom Haus entfernt.
Das beliebte Naturschutzgebiet "Gögerl", welches zu wunderschönen Spaziergängen oder Fahrradausflügen einlädt, liegt nur 2 Minuten entfernt.
Wenn Sie die Immobilien-Karte anzeigen, übertragen Sie Daten an Google Maps (Datenschutzerklärung).
Die dargestellte Position der Immobilie ist nur eine ungefähre Angabe.

















