Startseite » Immobilien » Frisch renoviert und viel Platz! Großzügiges Reihenmittelhaus in Hohenpeissenberg!
Frisch renoviert und viel Platz! Großzügiges Reihenmittelhaus in Hohenpeissenberg!
82383 Hohenpeißenberg, Reihenmittelhaus zum Kauf
Referenz
Dieses Objekt wurde bereits erfolgreich vermittelt.
Objektdaten
-
Baujahr1982
-
Zimmer5
-
Wohnfläche ca.135 m²
-
Grundstück ca.244,70 m²
Ausstattung / Merkmale
- ✓ Einbauküche
- ✓ Garage
- ✓ Gäste-WC
- ✓ Keller
- ✓ Massivbauweise
- ✓ Separates WC
- ✓ Terrasse
Objektbeschreibung
Beschreibung
Dieses großzügige Reihenmittelhaus wurde 1982 von einem renommierten Bauträger aus der Region in massiver Ziegelbauweise auf einem sonnigen Grundstück erstellt.
Bereits bei der Ankunft fällt einem die erneuerte Fassade auf und unterstreicht den gepflegten Gesamtzustand des Hauses.
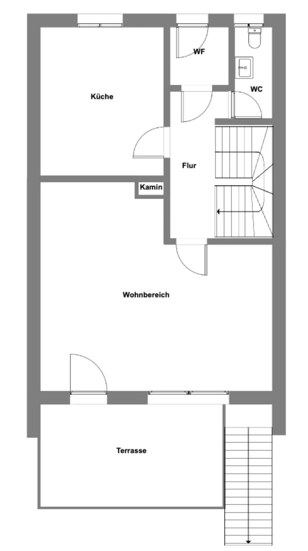
Nach dem öffnen der Haustüre gelangt man durch einen Windfang mit Garderobe in den geräumigen Flur.
Das modern gestaltete Gäste-WC überzeugt mit Metro-Fliesen und klassisch modernem Design.
Die großzügige Wohnküche überzeugt mit einer Schreiner-Einbauküche mit Massivholzfronten sowie hochwertigen Elektrogeräten (Küche samt Elektrogeräten ist im Kaufpreis enthalten).
Das ausladende Wohnzimmer verfügt über große Panoramafenster. Der Bodenbelag ist in hochwertigen, geölten Eichen-Parkett im Dielenformat ausgelegt und sorgt für rustikal modernen Charme.
Hier besteht auch die Möglichkeit einen Kaminofen anzuschließen, welcher an kälteren Tagen für eine wohlige Atmosphäre sorgt.
Vom Wohnzimmer gelangen Sie zudem in den eigenen, charmant bepflanzten Garten und sonniger Süd-Terrasse. Eine vorhandene Markise sorgt an sonnigen Tagen für wohltuende Beschattung.
Das Obergeschoß wird über die Stahltreppe mit Holzstufen erreicht. Hier befinden sich 3 lichtdurchflutete, großzügige Schlafzimmer (1 davon mit Zugang zum überdachten Südbalkon), sowie ein modern gestaltetes Badezimmer mit bodengleicher Dusche, Badewanne, WC sowie Waschtisch. Das Badezimmer verfügt zudem über eine elektrisch betriebene Fussbodenheizung.
Im voll ausgebauten Dachgeschoß befindet sich ein kleiner Flur, ein großes Wohnstudio und ein eigenes Badezimmer mit Dusche, WC, Bidet und Waschtisch.
Im Kellergeschoß stehen ein großer Hobbykeller, eine voll ausgestattete Waschküche mit neuwertiger Waschmaschine sowie Wäschetrockner, ein Lagerraum, eine kleine Werkstatt sowie der Heizungskeller mit der 2013 erneuerten Vissmann-Brennwert-Ölheizung bereit. Der Keller ist auch vom Garten dank überdachter Aussentreppe erreichbar.
Das gesamte Haus wurde laufend renoviert. So wurden zum Beispiel das WC und das Bad im OG sowie die Böden 2019 , die Heizung 2013 und die Fassade ca. 2016 erneuert.
Seither wurde das Haus nur sporadisch als Zweitwohnsitz genutzt und präsentiert sich in neuwertigem Zustand.
Das neuwertige Mobiliar kann komplett übernommen werden.
Abgerundet wird dieses Angebot mit einer übergroßen Einzelgarage, welche bereits mit Licht und Strom versorgt ist.
Ausstattung
- umfangreich renoviertes Haus (Böden, Bad, Fassade, Heizung...)
- 4 Schlafzimmer (mit einfachen Baumaßnahmen wären 5 Schlafzimmer möglich)
- großzügige Fensterflächen mit Rollläden
- Süd-Terrasse mit Markise
- Süd-Balkon
- überdachte Kelleraußentreppe
- Echtholz-Einbauküche mit neuwertigen Markenelektrogeräten
- große Einzelgarage mit Licht und Strom
- Objekt kann teilweise möbliert übernommen werden
Sonstiges
Provisionshinweis: mit Ihrer Anfrage auf die von uns inserierte Immobilie schließen Sie mit uns einen rechtsgültigen Maklervertrag ab, welcher jedoch erst mit erfolgreichem Zustandekommen eines rechtsgültigen notariellen Kaufvertrages eine Provisionspflicht auslöst.
Haftungsausschluss: alle Angaben sind vom Eigentümer, der Makler übernimmt keine Haftung für deren Vollständigkeit und Richtigkeit.
Dieses Exposé ist eine Vorinformation, als Rechtsgrundlage gilt alleine der notariell abgeschlossene Kaufvertrag.
Lage
Hohenpeißenberg - mit seiner überwältigenden Rundumsicht vom Berg aus, mit seiner berühmten Wallfalhrtskirche, ist ein staatlich anerkannter Erholungsort mit ca. 2000 Einwohnern.
Für jeden Bedarf des täglichen Lebens ist vor Ort gesorgt, Schule, Kindergarten, Kirche und Gaststätte und Sportmöglichkeiten vereinfachen das Leben. Tennis, Reiten, Radl- und Skifahren mit Lift, Langlaufen - alles ist möglich! Großeinkäufe und weiterführende Schulen sind schon in Peißenberg und Peiting (mit Bus oder Bahn) in wenigen Autominuten erreichbar. Hohenpeißenberg liegt mitten im sogenannten 'Pfaffenwinkel' mit seinen berühmten Klöstern und ist von Weilheim oder Schongau leicht über die neuen Umgehungsstraßen - oder mit Bahn und Bus zu erreichen. Die Umgehungsstraße von Hohenpeißenberg ist bereits fertiggestellt und macht den Ort noch ruhiger und familienfreundlicher.
Das Objekt selbst liegt in einem ruhigen, ansprechend bebauten Wohngebiet an einer Spielstrasse. Hinter dem Haus befindet sich ein Spielplatz. Von dort aus können Sie den Blick auf den Hohenpeißenberg in vollen Zügen genießen. Der Bahnhof befindet sich in ca. 7 Gehminuten entfernt und bietet Ihnen sehr gute Zugverbindungen nach Weilheim oder München. Ein Badesee mit zahlreichen Möglichkeiten zu Freizeitaktivitäten samt Kiosk befindet sich in ca. 10 Gehminuten Entfernung.
Wenn Sie die Immobilien-Karte anzeigen, übertragen Sie Daten an Google Maps (Datenschutzerklärung).
Die dargestellte Position der Immobilie ist nur eine ungefähre Angabe.

















