Startseite » Immobilien » Traumhaftes Einfamilienhaus mit Einliegerwohnung in absoluter Bestlage von Weilheim
Traumhaftes Einfamilienhaus mit Einliegerwohnung in absoluter Bestlage von Weilheim
82362 Weilheim in Oberbayern, Einfamilienhaus zum Kauf
Referenz
Dieses Objekt wurde bereits erfolgreich vermittelt.
Objektdaten
-
Baujahr1983
-
Zimmer6
-
Wohnfläche ca.148,35 m²
-
Grundstück ca.591 m²
Ausstattung / Merkmale
- ✓ Einbauküche
- ✓ Einliegerwohnung
- ✓ Garage
- ✓ Gäste-WC
- ✓ Kamin
- ✓ Keller
- ✓ Separates WC
- ✓ Terrasse
Objektbeschreibung
Beschreibung
Dieses liebevoll gepflegte und stets modernisierte Einfamilienhaus befindet sich in bester Lage in Weilheim nahe eines Naturschutzgebiets.
Das Haus wurde im Jahr 1983 in massiver Bauweise auf einem ca. 591 Quadratmeter großen, sonnigen Grundstück mit Süd-West-Ausrichtung erstellt.
Das gesamte Gebäude sowie das Grundstück präsentiert sich in äusserst gepflegtem Zustand.
Bereits bei der Ankunft werden Sie von einem einladenden Vorgarten mit schön angelegtem Zuweg begrüßt. Das gesamte Grundstück ist eingezäunt.
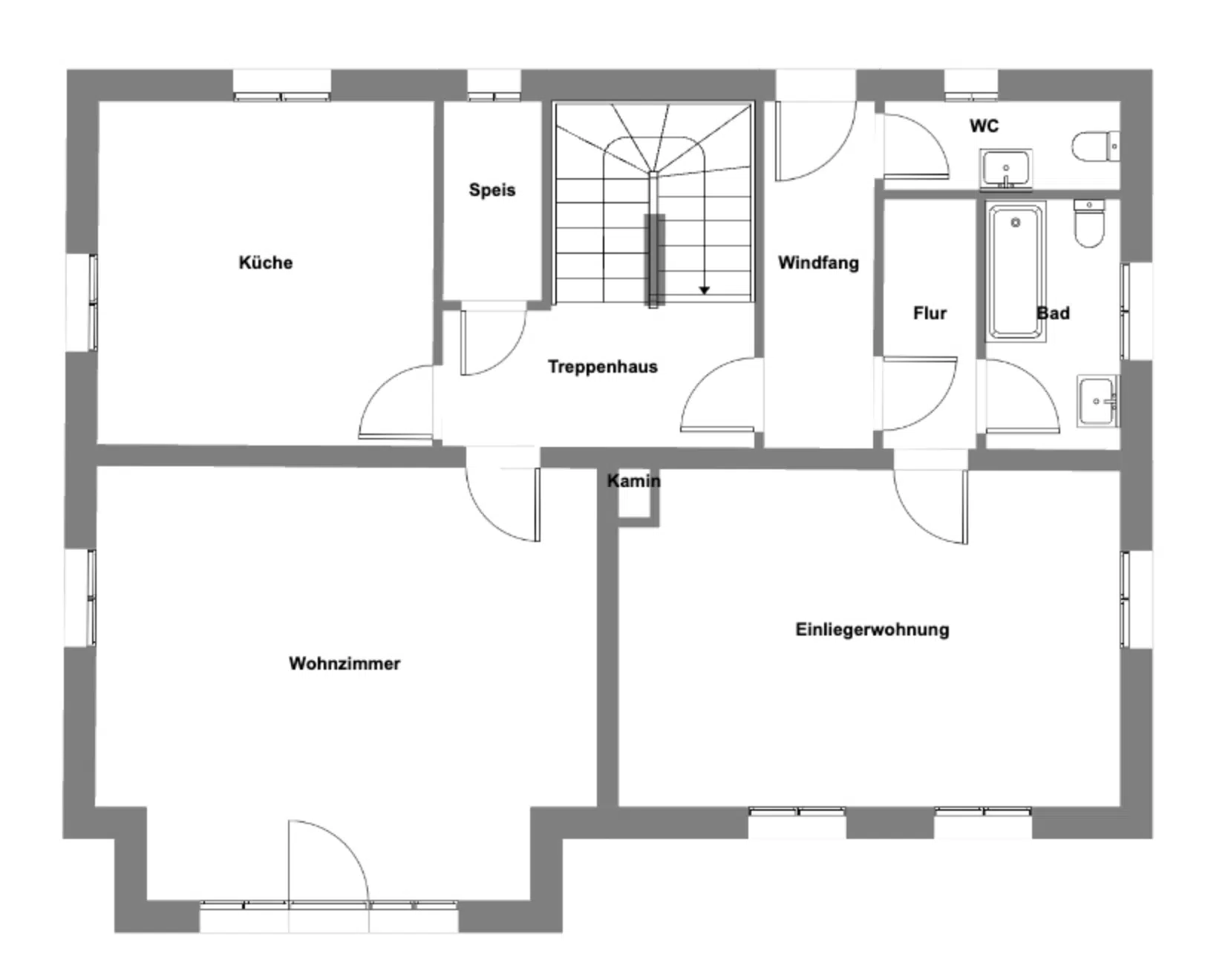
Nach dem Betreten werden Sie von einem großzügigen Flur empfangen.
Von hier aus gelangen Sie in das Gäste-WC mit Tageslicht, in die Einliegerwohnung sowie ins Haupthaus.
In der Einliegerwohnung steht Ihnen ein separater kleiner Flur zur Verfügung, welchen den Zutritt zum Badezimmer (mit Waschtisch, WC sowie Badewanne) als auch zum Wohn-Schlafzimmer gewährt. In diesem Raum sind auch bereits die Küchenanschlüsse vorbereitet.
Im Haupthaus steht Ihnen ein geräumiger Flur, eine große Wohnküche (die Einbauküche samt Elektrogeräten ist im Kaufpreis enthalten) sowie ein großzügiges, lichtdurchflutetes Wohnzimmer zur Verfügung. Des Weiteren existiert hier ein Kachelofen mit neuem Ofeneinsatz, welcher im Winter für gemütliche Atmosphäre und wohlige Wärme sorgt.
Vom Wohnzimmer haben Sie auch Zugang zur überdachten XXL-Terrasse mit Westausrichtung und Blick in den traumhaft gepflegten Garten.
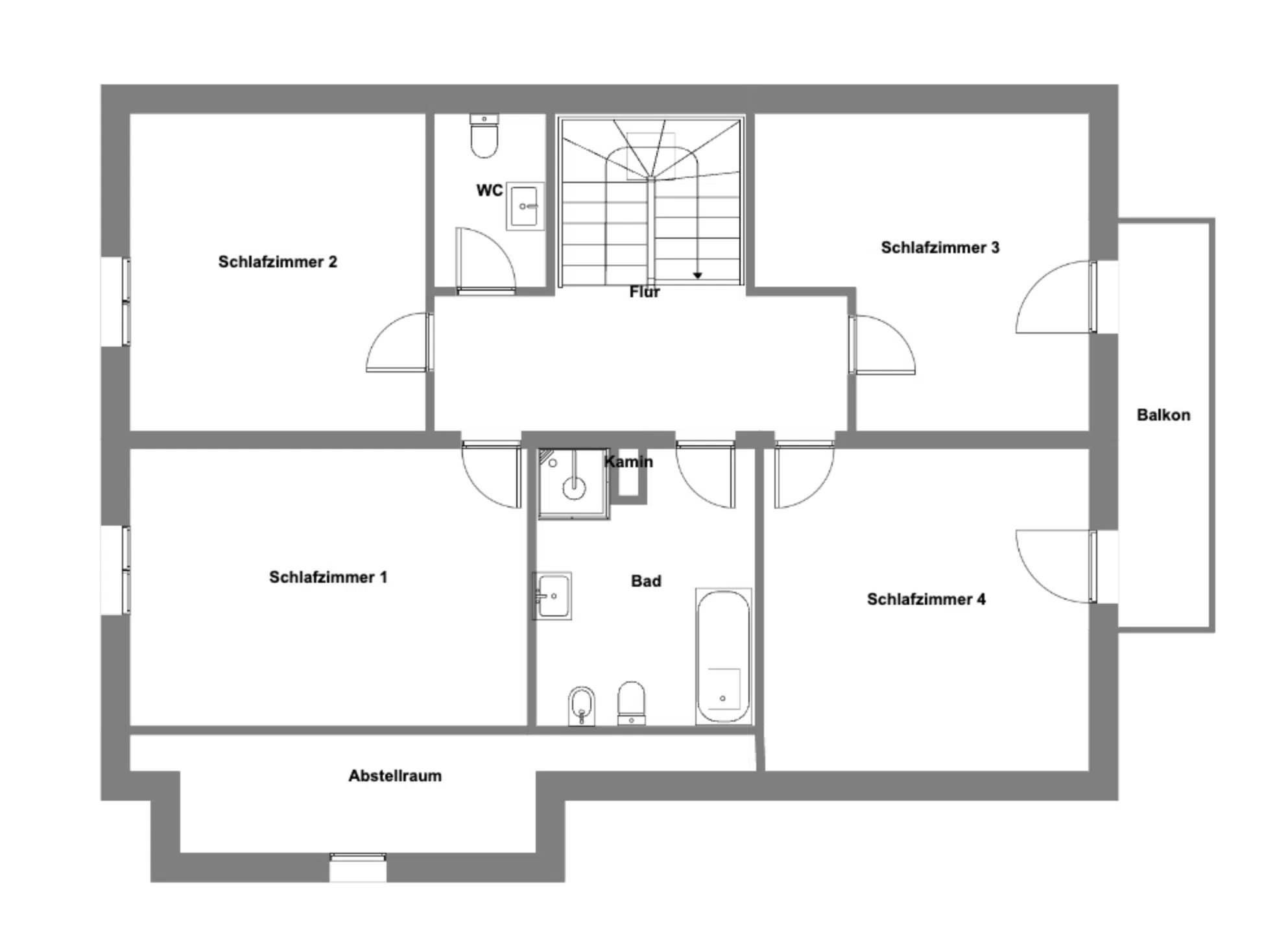
Im Obergeschoß empfangen Sie 4 große Schlafzimmer (2 davon mit Zugang zum Süd-Balkon), ein Badezimmer mit Badewanne, Waschtisch und Dusche sowie ein separates WC mit Waschtisch.
Das Gebäude ist voll unterkellert. Hier befindet sich ein Hauswirtschaftsraum mit Waschmaschinenanschluss, 2 Lagerräume, der Heizungskeller (Gas-Brennwert-Heizung wurde 2005 erneuert), sowie ein großer Hobbykeller. Eine rustikale Kellerbar und viel Platz laden zu ausgelassenen Festivitäten ein.
Die Fassade sowie Holzteile regelmäßig gestrichen und auch die meisten Fenster und Rollläden sind bereits durch 2-Fach-Verglaste Echtholzfenster mit hohem Wärmewert in diesem Zeitraum erneuert worden.
Abgerundet wird dieses Objekt durch eine zugehörige Doppelgarage (ohne Trennwand).
Das Objekt liegt nur ca. 15 Gehminuten von der Weilheimer Innenstadt, direkt an einem der beliebtesten Naturschutzgebiete in Weilheim.
Ausstattung
- Bestlage am Naturschutzgebiet und unweit des Weilheimer Stadtzentrums
- Einliegerwohnung
- Rollläden (teilweise elektrisch)
- Kachelofen
- Einbauküche samt Elektrogeräte im Kaufpreis enthalten
- Fenster, Heizung sowie Fassade vor einigen Jahren erneuert
- XXL-Süd-West-Terrasse
- Großer Garten
- Komplett eingezäunt
- 2 Badezimmer
Sonstiges
Provisionshinweis: mit Ihrer Anfrage auf die von uns inserierte Immobilie schließen Sie mit uns einen rechtsgültigen Maklervertrag ab, welcher jedoch erst mit erfolgreichem Zustandekommen eines rechtsgültigen notariellen Kaufvertrages eine Provisionspflicht auslöst.
Haftungsausschluss: alle Angaben sind vom Eigentümer, der Makler übernimmt keine Haftung für deren Vollständigkeit und Richtigkeit.
Dieses Exposé ist eine Vorinformation, als Rechtsgrundlage gilt alleine der notariell abgeschlossene Kaufvertrag.
Lage
Die Stadt Weilheim liegt mit ihren rund 21.500 Einwohnern eingebettet im wunderschönen Voralpenland zwischen München und Garmisch-Partenkirchen, mit direktem Blick auf die Berge.
Als historische Kreisstadt ist sie Zentrum des oberbayrischen Pfaffenwinkels mit seinen berühmten Klöstern, Kirchen und Seen und besticht dadurch mit ihrem hohen Freizeitwert.
Darüber hinaus ist Weilheim eine beliebte Einkaufsstadt mit einer einladenden Fußgängerzone in der historischen Altstadt.
An den maßgeblichen Verkehrsachsen der Stadt haben sich in den letzten Jahren attraktive Gewerbegebiete entwickelt, die eine überregionale Versorgungsfunktion übernommen haben.
Mit ihren leistungsfähigen Gewerbebetrieben ist die Stadt Weilheim ein starker wirtschaftlicher Faktor innerhalb des Landkreises.
Weilheim bietet zudem eine gute Anbindung zur Landeshauptstadt München in etwa 50 km. Um die Berge zu erreichen fährt man ca. 45 km bis Garmisch-Partenkirchen. Da sich Weilheim zudem nah am Fünfseenland befindet, sind der Starnberger See, der Ammersee und der Staffelsee in ca. 20 min zu erreichen.
Das Haus selbst befindet sich, sehr ruhig gelegen und dennoch zentral direkt an einem Naturschutzgebiet.
Zahlreiche Einkaufsmöglichkeiten sowie die Weilheimer Innenstadt befinden sich nur wenige Gehminuten vom Haus entfernt.
Wenn Sie die Immobilien-Karte anzeigen, übertragen Sie Daten an Google Maps (Datenschutzerklärung).
Die dargestellte Position der Immobilie ist nur eine ungefähre Angabe.





















