Startseite » Immobilien » Sonnige Doppelhaushälfte in bester Wohnlage in Peißenberg
Sonnige Doppelhaushälfte in bester Wohnlage in Peißenberg
82380 Peißenberg, Doppelhaushälfte zum Kauf
Referenz
Dieses Objekt wurde bereits erfolgreich vermittelt.
Objektdaten
-
Baujahr2001
-
Zimmer5
-
Wohnfläche ca.135 m²
-
Grundstück ca.366 m²
Ausstattung / Merkmale
- ✓ Einbauküche
- ✓ Garage
- ✓ Gäste-WC
- ✓ Kamin
- ✓ Keller
- ✓ Massivbauweise
- ✓ Terrasse
Objektbeschreibung
Beschreibung
Diese gefällige Doppelhaushälfte wurde im Jahr 2001 von einem regionalen Bauträger in Massivbauweise auf einem sonnigen ca. 366 Quadratmeter großen Grundstück in bevorzugter Wohnlage in Peißenberg erstellt.
Bereits bei Ankunft bemerkt man die attraktive Bebauung im Umfeld sowie die naturnahe und familienfreundliche Lage.
Nach dem Betreten der Eingangstüre werden Sie von einer geräumigen Diele empfangen.
Von hier aus gelangen Sie ins Gäste-WC mit WC, Waschtisch sowie Tageslicht.
Eine praktische Gardarobennische sorgt für die Unterbringung von Bekleidung und Schuhen oder kann auch als Speisekammer genutzt werden.
Die geräumige Wohnküche verfügt über eine Einbauküche samt Elektrogeräten. Von hier aus gelangen Sie über die Essdiele ins großzügige Wohnzimmer.
Dieses verfügt über einen gemütlichen Kaminofen und sorgt damit an kalten Tagen für eine gemütliche Atmosphäre.
Die vorgelagerte Süd-Terrasse sowie der große Garten beschert Ihnen neben einem schönen Weitblick viele Sonnenstunden. Dank vorhandener Markise kann eine angenehme Beschattung an heissen Sommertagen hergestellt werden.
Im Obergeschoß befinden sich 3 geräumige Schlafzimmer sowie ein voll ausgestattetes Tageslicht-Badezimmer mit Waschtisch, WC, Dusche sowie Badewanne.
Das Haupt-Schlafzimmer mit stattlichen ca. 18,5 Quadratmeter bietet zudem den Zugang auf den Süd-Balkon.
Im Dachgeschoß befindet sich ein großzügiges, voll ausgebautes Dachstudio mit eigenem Badezimmer (Dusche, Waschtisch, WC und Fenster).
Das Dachgeschoss wurde nachträglich ausgebaut, ist aber laut Bayerischer Bauordnung Art. 57 Nr. 18 verfahrensfrei.
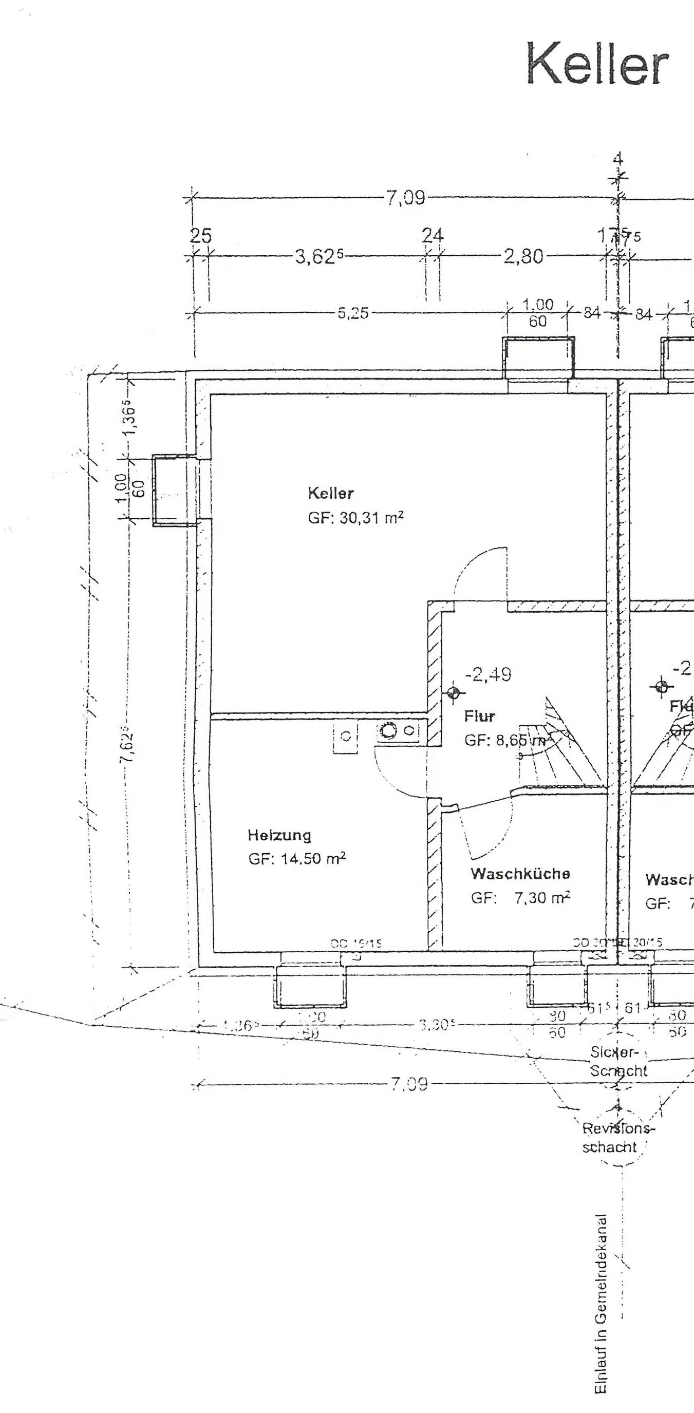
Das Haus ist voll unterkellert. Hier befindet sich der Heizungsraum mit der Gas-Heizung, eine Waschküche sowie ein ca. 30,3 Quadratmeter großer Kellerraum.
Abgerundet wird dieses schöne familienfreundliche Haus mit einem Aussenstellplatz sowie einer zugehörigen Einzelgarage mit großem Dachspeicher.
Das Objekt ist aktuell an eine Familie vermietet.
Ausstattung
- Top-Wohnlage
- Parkett Fussböden
- Einbauküche samt Elektrogeräte im Kaufpreis enthalten
- 2 Bäder
- Dachstudio ausgebaut
- Kaminofen
- Lichtdurchflutete Räume mit tollem Weitblick
- Süd-Terrasse
- Süd-Garten
- Einzelgarage mit großem Dachspeicher
- Aussenstellplatz
Sonstiges
Provisionshinweis: mit Ihrer Anfrage auf die von uns inserierte Immobilie schließen Sie mit uns einen rechtsgültigen Maklervertrag ab, welcher jedoch erst mit erfolgreichem Zustandekommen eines rechtsgültigen notariellen Kaufvertrages eine Provisionspflicht auslöst.
Haftungsausschluss: alle Angaben sind vom Eigentümer, der Makler übernimmt keine Haftung für deren Vollständigkeit und Richtigkeit.
Dieses Exposé ist eine Vorinformation, als Rechtsgrundlage gilt alleine der notariell abgeschlossene Kaufvertrag.
Lage
Die Stadt Peißenberg liegt mit ihren rund 12.500 Einwohnern eingebettet im wunderschönen Voralpenland zwischen Seen und Bergen und bietet Ihnen eine perfekte Infrastruktur.
Regelmäßige Bahnverbindungen in die Landeshauptstadt München oder nach Garmisch-Partenkirchen (ca. 35-40 Minuten Fahrzeit) sowie die Nähe zur Kreisstadt Weilheim (ca. 10 Minuten) sorgen für gute Mobilität.
Sämtliche Einkaufsmöglichkeiten für den täglichen Bedarf, Apotheken oder Ärztliche Versorgung, ein Baumarkt, ein Eisstadion sowie ein großes Freibad befinden sich ebenfalls im Ort wie auch diverse Kindergärten, Kinderkrippen, Grundschulen sowie weiterführende Schulen.
Da sich Peißenberg zudem nah am Fünfseenland befindet, sind der Starnberger See, der Ammersee sowie der Staffelsee in ca. 20 Minuten zu erreichen.
Das Haus liegt in ruhiger, bevorzugter Wohnlage im beliebten Ortsteil Wörth in Peißenberg.
Schulen, Kindergarten, Kita sowie das Eisstadion und das Freibad Rigi-Rutschn liegen nur einen "Steinwurf" entfernt.
Das Freizeiterholungsgebiet Ammer liegt ca. 5 Gehminuten entfernt und lädt mit traumhafter Natur zu Spaziergängen sowie Fahrradtouren ein.
Wenn Sie die Immobilien-Karte anzeigen, übertragen Sie Daten an Google Maps (Datenschutzerklärung).
Die dargestellte Position der Immobilie ist nur eine ungefähre Angabe.















