Startseite » Immobilien » Große, attraktive Verkaufsfläche in Bestlage der Weilheimer Fußgängerzone
Große, attraktive Verkaufsfläche in Bestlage der Weilheimer Fußgängerzone
82362 Weilheim in Oberbayern, Verbrauchermarkt zur Miete
Referenz
Dieses Objekt wurde bereits erfolgreich vermittelt.
Objektdaten
-
Baujahr1935
-
Zimmer7
Ausstattung / Merkmale
- ✓ Räume veränderbar
Objektbeschreibung
Beschreibung
Einmalige Gelegenheit!
Attraktive Verkaufsfläche mit gut einsehbaren Panorama-Schaufenstern in Bestlage der Weilheimer Fußgängerzone!
Die großzügigen Räumlichkeiten erstreckt sich über 2 Etagen plus Untergeschoss und befindet sich direkt in der stark frequentierten und beliebten Weilheimer Fußgängerzone, umgeben von diversen Verkaufsgeschäften und Gastronomien.
Dank den Panoramafenstern und den offen gestalteten Räumlichkeiten ist die Nutzung für ein Verkaufsgewerbe optimal.
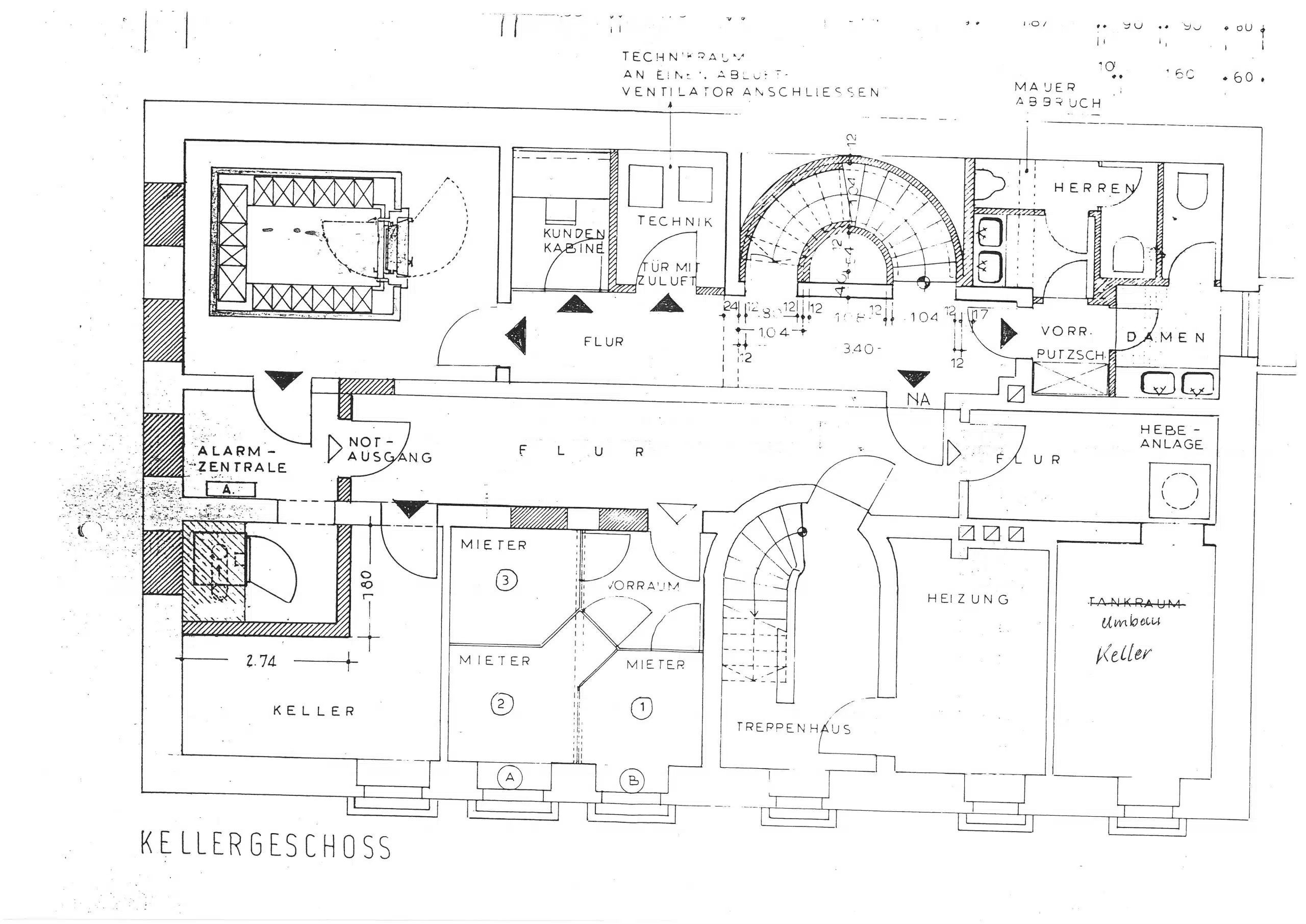
Erdgeschoss, Obergeschoss und Untergeschoss sind durch eine breite Treppe miteinander verbunden.
Durch die offene und lichtdurchflutete Raumgestaltung lässt sich hier eine vielfältige Nutzung erreichen.
Das Erdgeschoss hält sich eine große Verkaufsfläche mit Schaufenstern Richtung Hauptstraße und Innenstadt vor. Das gefällig integrierte Treppenhaus bietet die Möglichkeit zur Abtrennung eines Raumes und verfügt zudem über einen weiteres abgeschlossenes Zimmer.
Das Obergeschoss verfügt über eine geräumigen Flur mit Möglichkeit zur Abtrennung eines weiteren Raumes und 5 bereits abgeschlossene Zimmer.
Im Untergeschoss des Gebäudes sind neben getrennten Toiletten noch einige Lagerräume als Nutzfläche vorhanden.
Eine Grundrissänderung bzw. ein für den künftigen Nutzer notwendiger Umbau ist nach Absprache mit den Vermietern jederzeit möglich.
Das markante, historische Gebäude mit ansprechender Architektur aus dem Jahr ca. 1935 wurde 1986 aufwändig kernsaniert und präsentiert sich in sehr gutem Zustand.
Der Energieausweis ist derzeit in Bearbeitung.
Ausstattung
- Panorama-Schaufenster zur Hauptstraße und zur Innenstadt
- Bestlage in der Weilheimer Fußgängerzone
- Markantes, historisches Gebäude
- ca. 149 Quadratmeter im Erdgeschoss
- ca. 150 Quadratmeter im Obergeschoss
- ca. 78 Quadratmeter Nutzfläche im Untergeschoss
Sonstiges
Keine zusätzliche Mieterprovision.
Alle Angaben sind vom Eigentümer, der Makler übernimmt keine Haftung für deren Vollständigkeit und Richtigkeit.
Lage
Die Stadt Weilheim liegt mit ihren rund 23.000 Einwohnern eingebettet im wunderschönen Voralpenland zwischen München und Garmisch-Partenkirchen, mit direktem Blick auf die Berge.
Als historische Kreisstadt ist sie Zentrum des oberbayrischen Pfaffenwinkels mit seinen berühmten Klöstern, Kirchen und Seen und besticht dadurch mit ihrem hohen Freizeitwert.
Darüber hinaus ist Weilheim eine beliebte Einkaufsstadt mit einer einladenden Fußgängerzone in der historischen Altstadt.
An den maßgeblichen Verkehrsachsen der Stadt haben sich in den letzten Jahren attraktive Gewerbegebiete entwickelt, die eine überregionale Versorgungsfunktion übernommen haben.
Mit ihren leistungsfähigen Gewerbebetrieben ist die Stadt Weilheim ein starker wirtschaftlicher Faktor innerhalb des Landkreises.
Weilheim bietet zudem eine gute Anbindung zur Landeshauptstadt München in etwa 50 km. Um die Berge zu erreichen fährt man ca. 45 km bis Garmisch-Partenkirchen. Da sich Weilheim zudem nah am Fünfseenland befindet, sind der Starnberger See, der Ammersee und der Staffelsee in ca. 20 min zu erreichen.
Das Objekt selbst liegt direkt in Bestlage der hoch frequentierten Fußgängerzone der Weilheimer Altstadt.
Wenn Sie die Immobilien-Karte anzeigen, übertragen Sie Daten an Google Maps (Datenschutzerklärung).
Die dargestellte Position der Immobilie ist nur eine ungefähre Angabe.























