Startseite » Immobilien » Zweifamilienhaus in traumhafter Lage mit Weit- und Bergblick in Oberhausen
Zweifamilienhaus in traumhafter Lage mit Weit- und Bergblick in Oberhausen
82386 Oberhausen, Zweifamilienhaus zum Kauf
Referenz
Dieses Objekt wurde bereits erfolgreich vermittelt.
Objektdaten
-
Baujahr1973
-
Zimmer8
-
Wohnfläche ca.184 m²
-
Grundstück ca.1.127 m²
Ausstattung / Merkmale
- ✓ Einbauküche
- ✓ Garage
- ✓ Keller
- ✓ Massivbauweise
- ✓ Separates WC
- ✓ Terrasse
Objektbeschreibung
Beschreibung
Dieses gepflegte 2-Familien-Haus befindet sich in atemberaubender Naturlage in Oberhausen (Ortsteil Maxlried).
Auf einem attraktiv geschnittenen, ca. 1.127 Quadratmeter großen, sonnigen Grundstück mit Süd-West-Ausrichtung können Sie den unverbaubaren Weitblick über die Wiesen bis in die Berge geniessen.
Oft können Sie sogar Rehe beim Fressen auf der angrenzenden Wiese beobachten.
Der Bach "Ach" mit angrenzenden, riesigen Wiesenflächen beschert nicht nur einen tollen Weitblick Richtung Nord-Osten sondern gewährt auch ein Wasserrecht für den Besitzer des Hauses.
Das massiv gebaute Haus wurde 1973 erstmals bezogen und über die vergangenen Jahre gepflegt und instand gehalten.
Neben einer Dämmung der Fassade und dem Dach wurden auch neue Fenster eingebaut. Die Ölheizung wurde ebenfalls erneuert und ist gut gewartet.
Über eine große Zufahrt mit 2 Aussenstellplätzen sowie 2 Einzelgaragen mit elektrischen Sektionaltoren gelangen Sie zum Haus.
Nach betreten der Haustüre werden Sie von einem offenen und hellen Treppenhaus empfangen.
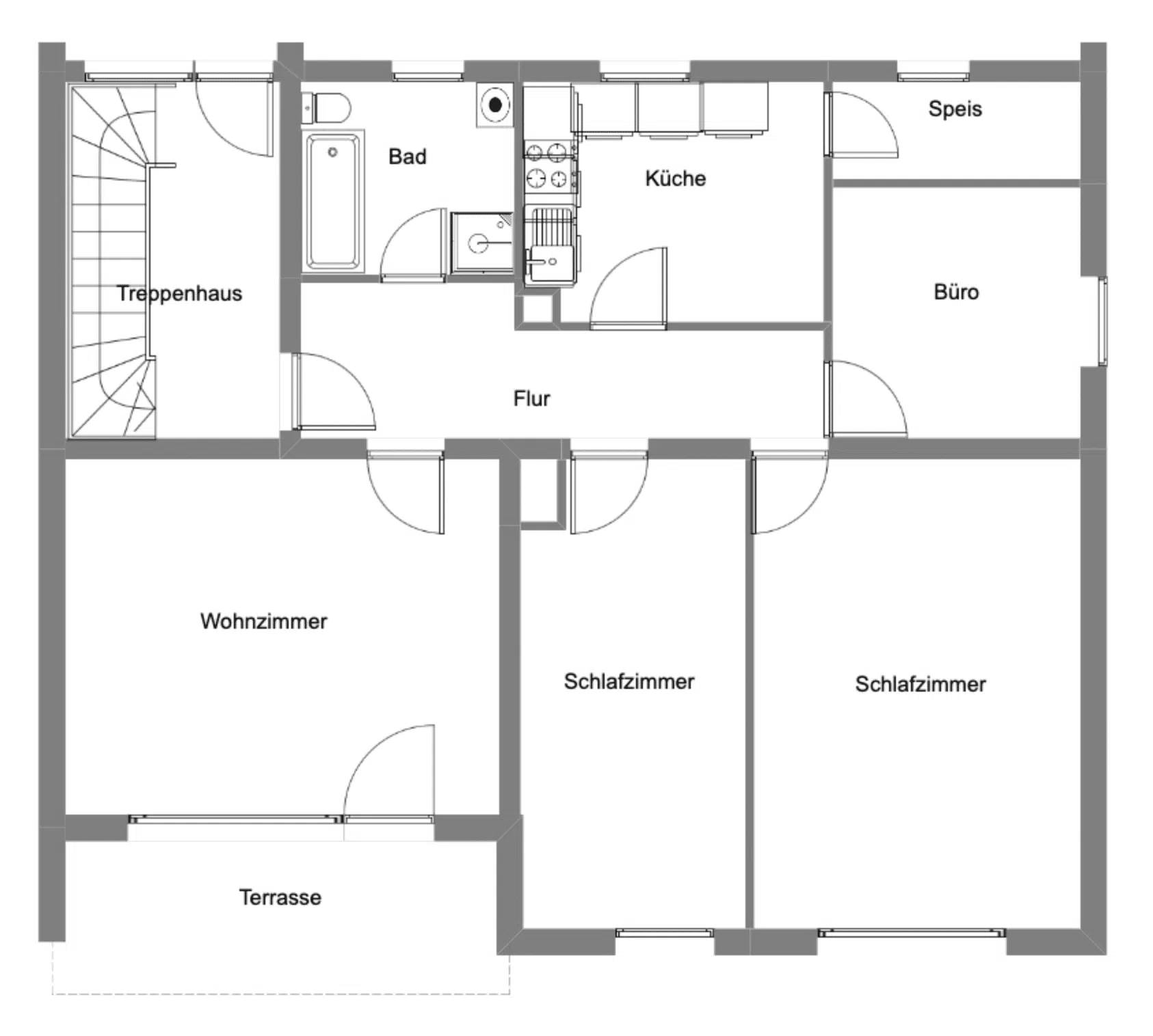
Die Wohnung im Erdgeschoß verfügt neben einer geräumigen Diele über ein großes Wohnzimmer mit Zugang zur Terrasse (von hier haben Sie traumhaften Weitblick über die Wiesen in die Berge), ein Badezimmer mit Badewanne, WC, Waschtisch sowie Dusche, eine geräumige Wohnküche mit angrenzender Speisekammer (Einbauküche samt Elektrogeräten im Preis enthalten) sowie 3 helle und geräumige Schlafzimmer.
Im ersten Stock befindet sich eine vom Grundriss identische Wohnung. Diese verfügt auch über eine Einbauküche samt Elektrogeräten und über einen großen Süd-West-Balkon mit Ausblick. Markisen am Balkon sowie an der Terrasse sorgen an heissen Sommertagen für angenehme Beschattung.
Diese Wohnung im 1. OG wurde samt Badezimmer 1995 modernisiert.
Im ca. 60 Quadratmeter großen Dachgeschoß befinden sich 3 Räume, eine Küche sowie WC und Duschbad. Hier wurden die Dachfenster 2018 erneuert.
Das Gebäude ist voll unterkellert. Die gepflegten, großen Kellerräume sind alle mit Fliesenboden belegt.
Zu erwähnen ist, daß das Grundstück aktuell vom Besitzer kleiner eingezäunt wurde. Bitte achten Sie hier auf den Lageplan.
Nutzen Sie die Gelegenheit auf ein Grundstück mit traumhafter, unverbaubarer Naturlage sowie Weit- und Bergblick.
Ausstattung
- 2 Aussenstellplätze
- 2 Einzelgaragen mit elektrischen Sektionaltoren
- Geräteschuppen
- Fussböden in Echtholz-Parkett sowie Fliesen
- 2 Einbauküchen samt Elektrogeräten im Kaufpreis enthalten
- sämtliche Fenster mit Rollläden
- Fassadendämmung sowie bereits erneuerte Fenster
- Wohnung im 1. OG 1995 modernisiert
- Markisen
- Süd-West-Balkon
- Süd-West-Terrasse
- großer Garten
- Wasserrecht am Bach "Ach"
- Dachgeschoß bereits ausgebaut – Küchenanschluss sowie Bad und WC vorhanden
- Keller in gepflegten Zustand mit Fliesenböden belegt
Sonstiges
Alle Angaben sind vom Eigentümer, der Makler übernimmt keine Haftung für deren Vollständigkeit und Richtigkeit.
Dieses Exposé ist eine Vorinformation, als Rechtsgrundlage gilt alleine der notariell abgeschlossene Kaufvertrag.
Provisionshinweis: mit Ihrer Anfrage auf die von uns inserierte Immobilie schließen Sie mit uns einen rechtsgültigen Maklervertrag ab, welcher jedoch erst mit erfolgreichem Zustandekommen eines rechtsgültigen notariellen Kaufvertrages eine Provisionspflicht auslöst.
Lage
Die Gemeinde Oberhausen befindet sich ca. 8 Kilometer südlich von Weilheim und zählt ca. 2.200 Einwohner.
Für das tägliche Leben finden Sie vor Ort einen Einkaufsmarkt, Metzger, Getränkemarkt, Ärzte, Kinderkrippe, Kindergarten, Grundschule, Badeweiher, Sportvereine, Kulturvereine sowie diverse Gastronomien.
Neben sehr guten Busverbindungen ist der Bahnhof Huglfing nur nur ca. 2 km entfernt und bietet stündliche Verbindungen nach München (Fahrzeit Huglfing/Hauptbahnhof München 44 Min.) oder Garmisch-Partenkirchen. Der Autobahnanschluss Sindelsdorf A95 ist ca. 25 km entfernt.
Die Landeshauptstadt München erreichen Sie mit dem PKW in ca. 50 Minuten.
Die nächst größeren Städte sind Weilheim und Peißenberg mit ca. 8 km Entfernung. Dort sind weiterführende Schulen (Mittelschule, Realschule, Gymnasium, Berufs- und Fachoberschule) sowie weitere Einkaufsmöglichkeiten und Krankenhäuser.
Das Haus liegt in absolut ruhiger, naturnaher Lage im Ortsteil Oberhausen-Obermaxlried und beschert Ihnen atemberaubenden Weitblick.
Die ungefähre Position der Immobilie auf Google Maps ansehen (Link auf externe Website)






























