Startseite » Immobilien » Einmalige Gelegenheit! Einfamilienhaus mit Ausbaureserve auf traumhaftem Grundstück und Lechzugang!
Einmalige Gelegenheit! Einfamilienhaus mit Ausbaureserve auf traumhaftem Grundstück und Lechzugang!
86956 Schongau, Einfamilienhaus zum Kauf
Referenz
Dieses Objekt wurde bereits erfolgreich vermittelt.
Objektdaten
-
Baujahr1972
-
Zimmer5
-
Wohnfläche ca.134 m²
-
Grundstück ca.1.922 m²
Ausstattung / Merkmale
- ✓ Einbauküche
- ✓ Garage
- ✓ Kamin
- ✓ Keller
- ✓ Massivbauweise
- ✓ Terrasse
Objektbeschreibung
Beschreibung
Einmalige Gelegenheit! Dieses im Jahr 1972 massiv erbaute und fortlaufend gepflegte Einfamilienhaus befindet sich auf einem ca. 1.922 m² großen, uneinsehbaren Grundstück im Außenbereich in Schongau.
Das besondere an diesem Naturidyll ist der direkte Zugang zum Lech!
Das in Hanglage erbaute Haus verfügt über einen attraktiven Grundriss und bietet im ausgebauten Dachgeschoß sowie im ausgebauten Gartengeschoß großzügige Möglichkeiten. Diese Flächen sind seit Jahren ausgebaut, sollten aber im Zuge des Eigentumsübergangs nachgenehmigt werden.
Die Flächen im Dachgeschoss sind bei der aktuell angegebenen Wohnfläche nicht beinhaltet!
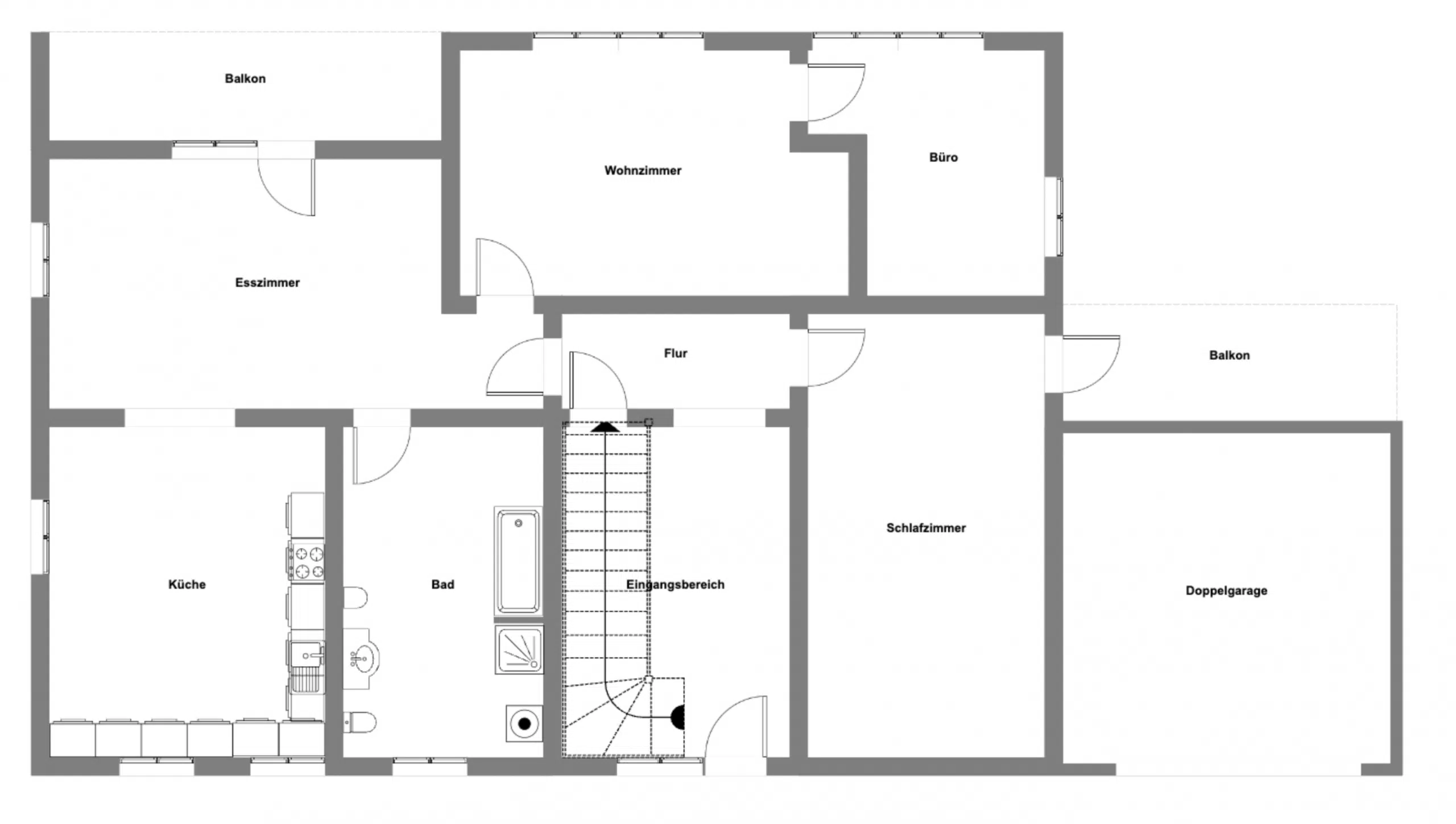
Im Erdgeschoß des Objekts werden Sie von einer Diele und dem Treppenhaus empfangen. Von hier aus gelangen Sie in die großzügige Küche (Einbauküche samt Elektrogeräten sind im Kaufpreis enthalten) welche fließend, durch einen Rundbogen, in den Essbereich übergeht. Das Wohnzimmer ist derzeit ein separater Raum, kann aber jederzeit, ohne großen Aufwand, zum Essbereich hin geöffnet werden.
Dank großzügigen Fenstern haben Sie hier ein Panorama wie im Urlaub und können sowohl die Natur des riesigen Grundstücks als auch die Farbenpracht des Lech´s in vollen Zügen geniessen.
An schönen Tagen steht Ihnen hier noch ein Balkon zur Verfügung und eröffnet den selben traumhaften Ausblick.
Angrenzend an das Wohnzimmer ist ein weiteres Zimmer, welches nur durch eine Leichtbauwand abgetrennt ist. Man hätte hier auf Wunsch die Möglichkeit, einen sehr ausladenden und lichtdurchfluteten Wohnbereich zu gestalten.
Zudem steht ein großes Schlafzimmer, welches ursprünglich als Garage geplant war zur Verfügung. Auch diese Fläche ist nicht in der Wohnfläche enthalten und sollte als Wohnraum nachgenehmigt werden. Ein Badezimmer mit Badewanne, Dusche, WC sowie Waschtisch steht ebenfalls auf dieser Etage zur Verfügung.
Im Dachgeschoß des Hauses befinden sich ein weiteres großes Schlafzimmer, ein großzügiges Dach-Studio mit Küche und Abstellraum sowie ein Badezimmer mit Badewanne, Waschtisch sowie WC zur verfügung. Dieser Bereich sollte auch nachgenehmigt werden, allerdings dürfen keine zwei abgeschlossenen Wohneinheiten entstehen.
Nachdem das Haus in Hanglage gebaut ist, befinden sich im Gartengeschoss weitere attraktive Wohnräume, welche dank großen Fensterflächen ebenfalls einen attraktiven Blick aufs Wasser bescheren.
Hier sind 2 große Schlafzimmer, 2 weitere Kellerräume sowie der Technikraum mit der Ölheizung beherbergt.
Dank der bereits vorhandenen Aussentreppe kann man diesen Bereich auch separat erreichen.
Die vorhandene Doppelgarage ist voll unterkellert. Dort finden Sie den Werkstattbereich.
Highlight der Immobilie ist der Terrassenförmige, große Garten mit diversen Gartenhäusern und gemütlichen Ecken zum Entspannen.
Der Garten verfügt über verschiedene, perfekt nutzbare Ebenen. Zu erwähnen ist, daß dies das einzige Grundstück in Schongau ist, welches einen direkten Lechzugang gewährt. Gerade im Sommer lädt das flach abfallende Ufer hier zum Baden oder zum Wassersport ein.
Sie haben weder gegenüber am Lechufer noch in direkter Umgebung Nachbarn, sodaß das Haus und auch das Grundstück weitestgehend uneinsehbar ist.
Vom Forstamt ist geplant das Ufer auszuholzen, sodaß sich der Blick auf den Lech nochmals verbessert.
Sichern Sie sich dieses Naturjuwel und geniessen Sie jeden Tag den Sonnenuntergang mit traumhaftem Farbspiel des Lechs direkt auf Ihrem Grundstück!
Ausstattung
- 1.922 m² großes eingewachsenes Grundstück mit verschiedenen Ebenen und Süd-West-Ausrichtung
- Direkter Lechzugang
- traumhafter Lechblick aus allen Wohnräumen
- 2 Balkone
- Terrasse
- Einbauküchen samt Elektrogeräten
- Grundofen
- Doppelgarage, voll unterkellert
- Werkstatt
- diverse Gartenhäuser und Schuppen
- liegt im Außenbereich
Sonstiges
Provisionshinweis: mit Ihrer Anfrage auf die von uns inserierte Immobilie schließen Sie mit uns einen rechtsgültigen Maklervertrag ab, welcher jedoch erst mit erfolgreichem Zustandekommen eines rechtsgültigen notariellen Kaufvertrages eine Provisionspflicht auslöst.
Haftungsausschluss: alle Angaben sind vom Eigentümer, der Makler übernimmt keine Haftung für deren Vollständigkeit und Richtigkeit.
Für die rechtssichere Nachgenehimgung der ausgebauten Flächen ist eine Anfrage beim Landratsamt/ Bauamt nötig. Eine Garantie kann nicht übernommen werden.
Dieses Exposé ist eine Vorinformation, als Rechtsgrundlage gilt alleine der notariell abgeschlossene Kaufvertrag.
Lage
Mit ca. 12.000 Einwohnern liegt die historisch charmante Stadt im Herzen der beliebten Region Pfaffenwinkel. Die Stadt verfügt über einen sehr hohen Freizeitwert, ob für sportlich Ambitionierte, für Familien mit Kindern oder für die ältere Generation.
Verbringen Sie wunderschöne Abendstunden in der historischen Altstadt oder erleben Sie das atemberaubende Farbspiel des Flusses Lech. Erleben Sie anschließend kulinarische Highlights in der vielseitigen Gastronomie.
Schongau verfügt über mehrere Kindergärten, eine Grund- und Mittelschule, eine Realschule, ein Gymnasium sowie ein Berufsbildungszentrum. Für sommerlichen Badespaß sorgt der Lido am Lechufer sowie das Familienbad „Plantsch“.
Ein Kreiskrankenhaus, viele Allgemeinärzte und Facharztpraxen sowie Apotheken decken die gesundheitliche Belange ab.
Ein großes Angebot an Einkaufsmöglichkeiten ist ebenfalls vorhanden.
Die ca. 80 km entfernte bayerische Metropole München ist über die B 17 und über die A 96 München-Lindau mühelos in rund 1 Fahrstunde zu erreichen. Zudem liegt Schongau zentral an der B17, die Augsburg über Landsberg am Lech mit Füssen verbindet. Auch der Schongauer Bahnhof wird stündlich von der Bayerischen Regiobahn angesteuert, mit Verbindungen nach Augsburg und Weilheim i. OB.
In Schongau selbst können Sie mit dem Stadtbus entspannt alle Ziele in der näheren Umgebung erreichen.
Das Objekt selbst liegt im Aussenbereich ca. 10 Gehminuten vom Zentrum entfernt.
Die ungefähre Position der Immobilie auf Google Maps ansehen (Link auf externe Website)























