Startseite » Immobilien » Ökologisches Wohnen und Arbeiten unter einem Dach! Juwel in Uffing am Staffelsee!
Ökologisches Wohnen und Arbeiten unter einem Dach! Juwel in Uffing am Staffelsee!
82449 Uffing am Staffelsee, Einfamilienhaus zum Kauf
Kontaktdaten
-
NameHerr Stefan Hoisl
-
FirmaImmobilien Franz Kilian
-
AdresseKreuzgasse 7
82362 Weilheim -
E-Mail Direkt
-
Tel. Zentrale
- zum Kontaktformular
Energieausweis
-
EnergieausweistypVerbrauchsausweis
-
Ausstellungsdatum24.11.2025
-
Gültig bis23.11.2035
-
GebäudeartWohngebäude
-
Baujahr lt. Energieausweis2000
-
PrimärenergieträgerGas
-
Endenergieverbrauch31,50 kWh/(m²·a)
-
EnergieeffizienzklasseA
Objektdaten
-
Objekt ID6063
-
ObjekttypenEinfamilienhaus, Haus
-
Adresse82449 Uffing am Staffelsee
-
Wohnfläche ca.157,40 m²
-
Grundstück ca.946 m²
-
Sonstige Fläche ca.74,74 m²
-
Zimmer5
-
Schlafzimmer3
-
Badezimmer3
-
Terrassen1
-
HeizungsartZentralheizung
-
Wesentlicher EnergieträgerGas
-
Baujahr2000
-
BauweiseHolz
-
Verfügbar abnach Vereinbarung
-
Stellplatz4 Stellplätze
-
ProvisionspflichtigJa
-
Käuferprovision2,38% inkl. 19% gesetzl. MwSt.
Die Käuferprovision beträgt 2,38% inkl. gesetzlicher Mehrwertsteuer vom verbrieften Kaufpreis und ist fällig bei Zustandekommen eines rechtsgültigen notariellen Kaufvertrages. Unsere Angebote erfolgen freibleibend und unverbindlich. Irrtum und Zwischenverkauf bleiben vorbehalten. -
Kaufpreis1.250.000 EUR
Ausstattung / Merkmale
- ✓ Außenstellplatz
- ✓ Carport
- ✓ Einbauküche
- ✓ Holzbauweise
- ✓ Kamin
- ✓ Keller
- ✓ Terrasse
Objektbeschreibung
Beschreibung
Ein Zuhause, das begeistert – Ökologisches Holzhaus mit Wohnen und Gewerbe unter einem Dach!
Entdecken Sie die einzigartige Verbindung von Natur, Komfort und Nachhaltigkeit in einem ökologischen Holzhaus, das Ihnen nicht nur ein gesundes, sondern auch ein inspirierendes Lebensumfeld bietet. Dieses moderne Zuhause bietet auf ca. 232,14 Quadratmeter Fläche Platz für privates Wohnen als auch gewerbliche Nutzung – ideal für kreative Köpfe, Selbstständige oder Familien, die Wohnen und Arbeiten harmonisch miteinander verbinden möchten.
Das Haus wurde im Jahr 2000 auf einem ca. 919 großen, sonnigen Grundstück in wunderschöner Naturlage erbaut.
Natürliches Raumklima für höchste Lebensqualität stand beim Bau im Vordergrund. So wurde von heimischen Handwerkern ein modernes und nachhaltiges Haus mit hochwertiger Materialien wie z.B. Lehmputz und unbehandeltem Holz aus heimischen Wäldern erschaffen.
Der Lehmputz reguliert die Luftfeuchtigkeit und sorgt so für ein gesundes, ausgewogenes Innenklima. Die Verwendung von Holz verleiht dem Haus nicht nur eine natürliche Ästhetik, sondern sorgt auch für einen angenehmen, beruhigenden Holzgeruch, der Ihr Zuhause prägt und für eine wohltuende Atmosphäre sorgt.
Zudem ist zu erwähnen, daß die angewandte Bauweise über hervorragende Dämmeigenschaften und eine bemerkenswerte Energieeffizienz verfügt.
Flexibles Raumkonzept für Ihre individuellen Bedürfnisse. Durch die Selbsttragende Konstruktion ist eine nahezu beliebige Veränderung der Grundrisse, ganz nach Ihren Wünschen, möglich.
Die durchdachte Raumaufteilung lässt Raum für vielfältige Nutzungsmöglichkeiten, ohne auf Komfort und Ruhe zu verzichten.
Bereits beim Erreichen fällt dieses Objekt in Hanglage mit liebevoller Gestaltung positiv auf.
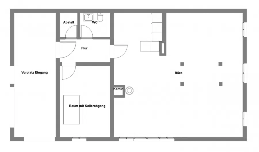
Im Erdgeschoss befinden sich zwei Nutzräume, einer davon mit Zugang zum Keller, ein WC sowie ein lichtdurchflutetes, großes Atelier welches nach Belieben gewerblich genutzt und aufgeteilt werden kann.
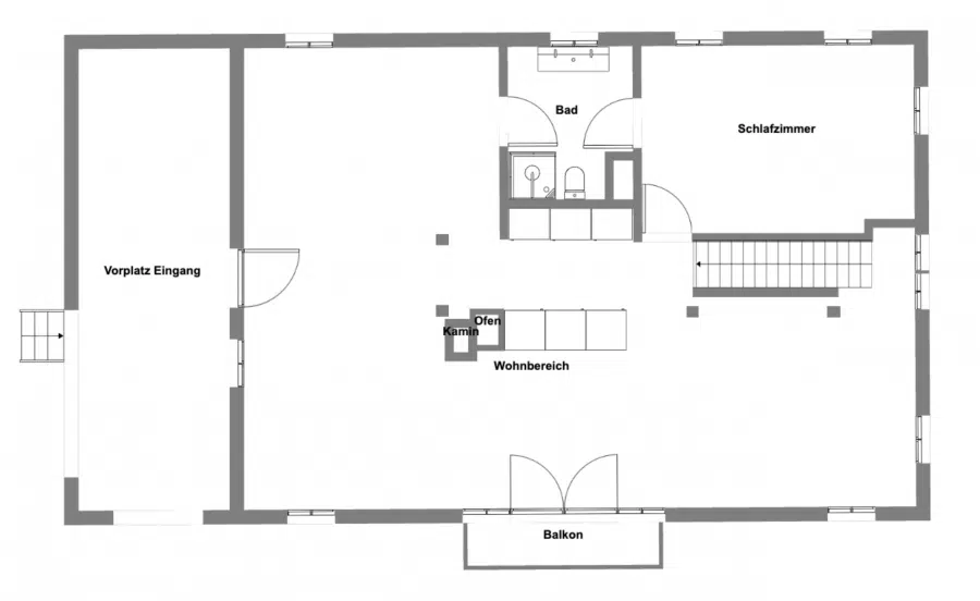
Im Obergeschoß befindet sich ein ausladender, überdachter Freisitz von dem man auf die liebevoll angelegte Terrasse gelangt.
Wenn Sie den Wohnraum betreten, werden Sie von einem attraktiven und offenen Raumkonzept empfangen. Neben einem Wohnzimmer mit offener Küche befindet sich auf dieser Etage noch ein Badezimmer mit WC, Waschtisch und Dusche sowie ein großes Schlafzimmer.
Für kalte Wintertage steht Ihnen ein gemütlicher Kaminofen sowie ein Grundofen in der Küche zur Verfügung.
Das Dachgeschoss welches über eine gefällige Holztreppe mit Holz-Glasklappe zu erreichen ist, befindet sich ein Schlafzimmer mit angrenzendem Badezimmer mit WC, Badewanne sowie Waschtisch.
Zudem befindet sich im Dachgeschoss noch ein weitere Wohnbereich welcher über einen separaten Zugang über die Außentreppe erreicht werden kann. Hier finden Sie eine große überdachte Veranda, ein Wohnbereich mit Kaminofen, einen offenen Schlafbereich sowie ein Badezimmer mit Waschtisch, WC und Dusche. Es wäre problemlos möglich diesen Bereich zum angrenzenden Dachgeschoss zu erweitern, da dies bereits vorgesehen ist.
Im Kellergeschoß stehen Ihnen 2 Lagerräume sowie die 2022 erneuerte Heizung samt Haustechnik zur Verfügung.
Der Aussenbereich erstreckt sich auf verschiedene Ebenen und bietet viele sonnige oder schattige Plätze, welche durch die liebevolle Gestaltung einen besonderen Charme versprühen. Mit Blick auf den kleinen Bach "Ach" können Sie den Feierabend einläuten und Natur und Ruhe genießen!
Für PKW´s steht ein großer Doppelcarport sowie zwei Aussenstellplätze (auf ca. 27 Quadratmetern) zur Verfügung. Hinter einem der Stellplätze befindet sich eine Holzlege. Für Fahrräder und Gartengeräte gibt es ein separates Nebengebäude unterhalb der Terrasse.
Verlieben Sie sich in den Charme dieses Hauses und erleben Sie, wie sich Natur und modernes, ökologisches Wohnen miteinander vereinen – für eine Lebensqualität, die Sie spüren können.
Ausstattung
- Gasbrennwertkessel und Speicher Dezember 2022 erneuert
- 3 Holz-Einzelöfen
- Hoher baubiologischer Standard, Allergikergeeignet
- 90 mm Holzblocktafeln Lux 4S; Außen mit 2x80 mm Korkplatten (Wif 045) plus 18 mm Holzeichfaserplatten/Latex mit Wind-und Luftdichtung, Fassadenschalung Lärche 24 mm; Innen mit Zementholzfaserplatten und Lehmputz
- Erdgeschoss Gewerblich als Büro/Atelier/Produktion nutzbar
- Dachgeschoss kann mit einfachen Mitteln verbunden werden
Sonstiges
Provisionshinweis: mit Ihrer Anfrage auf die von uns inserierte Immobilie schließen Sie mit uns einen rechtsgültigen Maklervertrag ab, welcher jedoch erst mit erfolgreichem Zustandekommen eines rechtsgültigen notariellen Kaufvertrages eine Provisionspflicht auslöst.
Haftungsausschluss: alle Angaben sind vom Eigentümer, der Makler übernimmt keine Haftung für deren Vollständigkeit und Richtigkeit.
Dieses Exposé ist eine Vorinformation, als Rechtsgrundlage gilt alleine der notariell abgeschlossene Kaufvertrag.
Lage
Uffing am Staffelsee ist eine malerische Gemeinde im oberbayerischen Landkreis Garmisch-Partenkirchen. Sie liegt am nördlichen Ufer des Staffelsees, einem der wärmsten Badeseen in Bayern, und bietet eine atemberaubende Aussicht auf die Alpen. Die Lage macht Uffing zu einem beliebten Ziel für Natur- und Kulturliebhaber.
Uffing befindet sich etwa 70 Kilometer südwestlich von München und ist gut erreichbar über die Bundesstraße 2, die eine direkte Verbindung nach München und Garmisch-Partenkirchen bietet. Die nahe gelegene Autobahn A95 sorgt zudem für eine schnelle Anbindung an die Landeshauptstadt München. Die geografische Lage zwischen den Alpen und der Voralpenlandschaft bietet nicht nur spektakuläre Ausblicke, sondern auch zahlreiche Freizeitmöglichkeiten, wie Wandern, Radfahren und Wassersport auf dem Staffelsee.
Trotz seiner idyllischen Lage bietet Uffing eine gut entwickelte Infrastruktur. Im Ort gibt es zahlreiche Geschäfte des täglichen Bedarfs, darunter Supermärkte, Bäckereien und Metzgereien. Auch Restaurants und Cafés sind vorhanden, die lokale und internationale Küche anbieten. Ein Kindergarten und eine Grundschule befinden sich direkt im Ort, weiterführende Schulen sind in den umliegenden Städten Murnau oder Weilheim gut erreichbar.
Die medizinische Versorgung ist durch mehrere Arztpraxen und eine Apotheke im Ort sichergestellt. Das nächstgelegene Krankenhaus befindet sich im etwa 10 Kilometer entfernten Murnau. Uffing verfügt über eine Anbindung an den öffentlichen Nahverkehr, insbesondere durch die Bahnstrecke München-Garmisch-Partenkirchen, die durch den Uffinger Bahnhof führt. Dies ermöglicht eine einfache und umweltfreundliche Anreise aus den umliegenden Regionen.
Insgesamt bietet Uffing am Staffelsee eine harmonische Kombination aus naturnaher Lage und moderner Infrastruktur, die den Ort sowohl für Einheimische als auch für Besucher attraktiv macht.
Das Haus befindet sich in ruhiger Wohnlage, idyllisch am Bach "Ach" gelegen und unweit des Dorfkerns mit zahlreichen Einkaufsmöglichkeiten.
Der beliebte Staffelsee liegt nur wenige Minuten entfernt und bietet tolle Badestrände, Wassersportaktivitäten sowie ausgedehnte Spaziergänge in traumhafter See- und Bergkulisse.
Wenn Sie die Immobilien-Karte anzeigen, übertragen Sie Daten an Google Maps (Datenschutzerklärung).
Die dargestellte Position der Immobilie ist nur eine ungefähre Angabe.
Direktanfrage
Objektdaten
-
Objekt ID6063
-
ObjekttypenEinfamilienhaus, Haus
-
Adresse82449 Uffing am Staffelsee
-
Wohnfläche ca.157,40 m²
-
Grundstück ca.946 m²
-
Sonstige Fläche ca.74,74 m²
-
Zimmer5
-
Schlafzimmer3
-
Badezimmer3
-
Terrassen1
-
HeizungsartZentralheizung
-
Wesentlicher EnergieträgerGas
-
Baujahr2000
-
BauweiseHolz
-
Verfügbar abnach Vereinbarung
-
Stellplatz4 Stellplätze
-
ProvisionspflichtigJa
-
Käuferprovision2,38% inkl. 19% gesetzl. MwSt.
Die Käuferprovision beträgt 2,38% inkl. gesetzlicher Mehrwertsteuer vom verbrieften Kaufpreis und ist fällig bei Zustandekommen eines rechtsgültigen notariellen Kaufvertrages. Unsere Angebote erfolgen freibleibend und unverbindlich. Irrtum und Zwischenverkauf bleiben vorbehalten. -
Kaufpreis1.250.000 EUR
Energieausweis
-
EnergieausweistypVerbrauchsausweis
-
Ausstellungsdatum24.11.2025
-
Gültig bis23.11.2035
-
GebäudeartWohngebäude
-
Baujahr lt. Energieausweis2000
-
PrimärenergieträgerGas
-
Endenergieverbrauch31,50 kWh/(m²·a)
-
EnergieeffizienzklasseA
Ausstattung / Merkmale
- ✓ Außenstellplatz
- ✓ Carport
- ✓ Einbauküche
- ✓ Holzbauweise
- ✓ Kamin
- ✓ Keller
- ✓ Terrasse
Kontaktdaten
-
NameHerr Stefan Hoisl
-
FirmaImmobilien Franz Kilian
-
AdresseKreuzgasse 7
82362 Weilheim -
E-Mail Direkt
-
Tel. Zentrale
- zum Kontaktformular
Objektbeschreibung
Beschreibung
Ein Zuhause, das begeistert – Ökologisches Holzhaus mit Wohnen und Gewerbe unter einem Dach!
Entdecken Sie die einzigartige Verbindung von Natur, Komfort und Nachhaltigkeit in einem ökologischen Holzhaus, das Ihnen nicht nur ein gesundes, sondern auch ein inspirierendes Lebensumfeld bietet. Dieses moderne Zuhause bietet auf ca. 232,14 Quadratmeter Fläche Platz für privates Wohnen als auch gewerbliche Nutzung – ideal für kreative Köpfe, Selbstständige oder Familien, die Wohnen und Arbeiten harmonisch miteinander verbinden möchten.
Das Haus wurde im Jahr 2000 auf einem ca. 919 großen, sonnigen Grundstück in wunderschöner Naturlage erbaut.
Natürliches Raumklima für höchste Lebensqualität stand beim Bau im Vordergrund. So wurde von heimischen Handwerkern ein modernes und nachhaltiges Haus mit hochwertiger Materialien wie z.B. Lehmputz und unbehandeltem Holz aus heimischen Wäldern erschaffen.
Der Lehmputz reguliert die Luftfeuchtigkeit und sorgt so für ein gesundes, ausgewogenes Innenklima. Die Verwendung von Holz verleiht dem Haus nicht nur eine natürliche Ästhetik, sondern sorgt auch für einen angenehmen, beruhigenden Holzgeruch, der Ihr Zuhause prägt und für eine wohltuende Atmosphäre sorgt.
Zudem ist zu erwähnen, daß die angewandte Bauweise über hervorragende Dämmeigenschaften und eine bemerkenswerte Energieeffizienz verfügt.
Flexibles Raumkonzept für Ihre individuellen Bedürfnisse. Durch die Selbsttragende Konstruktion ist eine nahezu beliebige Veränderung der Grundrisse, ganz nach Ihren Wünschen, möglich.
Die durchdachte Raumaufteilung lässt Raum für vielfältige Nutzungsmöglichkeiten, ohne auf Komfort und Ruhe zu verzichten.
Bereits beim Erreichen fällt dieses Objekt in Hanglage mit liebevoller Gestaltung positiv auf.
Im Erdgeschoss befinden sich zwei Nutzräume, einer davon mit Zugang zum Keller, ein WC sowie ein lichtdurchflutetes, großes Atelier welches nach Belieben gewerblich genutzt und aufgeteilt werden kann.
Im Obergeschoß befindet sich ein ausladender, überdachter Freisitz von dem man auf die liebevoll angelegte Terrasse gelangt.
Wenn Sie den Wohnraum betreten, werden Sie von einem attraktiven und offenen Raumkonzept empfangen. Neben einem Wohnzimmer mit offener Küche befindet sich auf dieser Etage noch ein Badezimmer mit WC, Waschtisch und Dusche sowie ein großes Schlafzimmer.
Für kalte Wintertage steht Ihnen ein gemütlicher Kaminofen sowie ein Grundofen in der Küche zur Verfügung.
Das Dachgeschoss welches über eine gefällige Holztreppe mit Holz-Glasklappe zu erreichen ist, befindet sich ein Schlafzimmer mit angrenzendem Badezimmer mit WC, Badewanne sowie Waschtisch.
Zudem befindet sich im Dachgeschoss noch ein weitere Wohnbereich welcher über einen separaten Zugang über die Außentreppe erreicht werden kann. Hier finden Sie eine große überdachte Veranda, ein Wohnbereich mit Kaminofen, einen offenen Schlafbereich sowie ein Badezimmer mit Waschtisch, WC und Dusche. Es wäre problemlos möglich diesen Bereich zum angrenzenden Dachgeschoss zu erweitern, da dies bereits vorgesehen ist.
Im Kellergeschoß stehen Ihnen 2 Lagerräume sowie die 2022 erneuerte Heizung samt Haustechnik zur Verfügung.
Der Aussenbereich erstreckt sich auf verschiedene Ebenen und bietet viele sonnige oder schattige Plätze, welche durch die liebevolle Gestaltung einen besonderen Charme versprühen. Mit Blick auf den kleinen Bach "Ach" können Sie den Feierabend einläuten und Natur und Ruhe genießen!
Für PKW´s steht ein großer Doppelcarport sowie zwei Aussenstellplätze (auf ca. 27 Quadratmetern) zur Verfügung. Hinter einem der Stellplätze befindet sich eine Holzlege. Für Fahrräder und Gartengeräte gibt es ein separates Nebengebäude unterhalb der Terrasse.
Verlieben Sie sich in den Charme dieses Hauses und erleben Sie, wie sich Natur und modernes, ökologisches Wohnen miteinander vereinen – für eine Lebensqualität, die Sie spüren können.
Ausstattung
- Gasbrennwertkessel und Speicher Dezember 2022 erneuert
- 3 Holz-Einzelöfen
- Hoher baubiologischer Standard, Allergikergeeignet
- 90 mm Holzblocktafeln Lux 4S; Außen mit 2x80 mm Korkplatten (Wif 045) plus 18 mm Holzeichfaserplatten/Latex mit Wind-und Luftdichtung, Fassadenschalung Lärche 24 mm; Innen mit Zementholzfaserplatten und Lehmputz
- Erdgeschoss Gewerblich als Büro/Atelier/Produktion nutzbar
- Dachgeschoss kann mit einfachen Mitteln verbunden werden
Sonstiges
Provisionshinweis: mit Ihrer Anfrage auf die von uns inserierte Immobilie schließen Sie mit uns einen rechtsgültigen Maklervertrag ab, welcher jedoch erst mit erfolgreichem Zustandekommen eines rechtsgültigen notariellen Kaufvertrages eine Provisionspflicht auslöst.
Haftungsausschluss: alle Angaben sind vom Eigentümer, der Makler übernimmt keine Haftung für deren Vollständigkeit und Richtigkeit.
Dieses Exposé ist eine Vorinformation, als Rechtsgrundlage gilt alleine der notariell abgeschlossene Kaufvertrag.
Lage
Uffing am Staffelsee ist eine malerische Gemeinde im oberbayerischen Landkreis Garmisch-Partenkirchen. Sie liegt am nördlichen Ufer des Staffelsees, einem der wärmsten Badeseen in Bayern, und bietet eine atemberaubende Aussicht auf die Alpen. Die Lage macht Uffing zu einem beliebten Ziel für Natur- und Kulturliebhaber.
Uffing befindet sich etwa 70 Kilometer südwestlich von München und ist gut erreichbar über die Bundesstraße 2, die eine direkte Verbindung nach München und Garmisch-Partenkirchen bietet. Die nahe gelegene Autobahn A95 sorgt zudem für eine schnelle Anbindung an die Landeshauptstadt München. Die geografische Lage zwischen den Alpen und der Voralpenlandschaft bietet nicht nur spektakuläre Ausblicke, sondern auch zahlreiche Freizeitmöglichkeiten, wie Wandern, Radfahren und Wassersport auf dem Staffelsee.
Trotz seiner idyllischen Lage bietet Uffing eine gut entwickelte Infrastruktur. Im Ort gibt es zahlreiche Geschäfte des täglichen Bedarfs, darunter Supermärkte, Bäckereien und Metzgereien. Auch Restaurants und Cafés sind vorhanden, die lokale und internationale Küche anbieten. Ein Kindergarten und eine Grundschule befinden sich direkt im Ort, weiterführende Schulen sind in den umliegenden Städten Murnau oder Weilheim gut erreichbar.
Die medizinische Versorgung ist durch mehrere Arztpraxen und eine Apotheke im Ort sichergestellt. Das nächstgelegene Krankenhaus befindet sich im etwa 10 Kilometer entfernten Murnau. Uffing verfügt über eine Anbindung an den öffentlichen Nahverkehr, insbesondere durch die Bahnstrecke München-Garmisch-Partenkirchen, die durch den Uffinger Bahnhof führt. Dies ermöglicht eine einfache und umweltfreundliche Anreise aus den umliegenden Regionen.
Insgesamt bietet Uffing am Staffelsee eine harmonische Kombination aus naturnaher Lage und moderner Infrastruktur, die den Ort sowohl für Einheimische als auch für Besucher attraktiv macht.
Das Haus befindet sich in ruhiger Wohnlage, idyllisch am Bach "Ach" gelegen und unweit des Dorfkerns mit zahlreichen Einkaufsmöglichkeiten.
Der beliebte Staffelsee liegt nur wenige Minuten entfernt und bietet tolle Badestrände, Wassersportaktivitäten sowie ausgedehnte Spaziergänge in traumhafter See- und Bergkulisse.
Wenn Sie die Immobilien-Karte anzeigen, übertragen Sie Daten an Google Maps (Datenschutzerklärung).
Die dargestellte Position der Immobilie ist nur eine ungefähre Angabe.











